Yard Updates and new patio 2013.

The Plan
Work commences
Landscape work starts
We have a rose garden!
Finishing Touches

6 Silver Spring's Transformed!

 

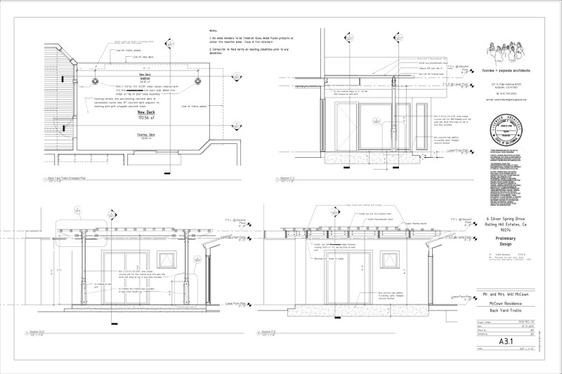
As we were finishing up the kitchen remodel we were already in the design phases for the next step which was to replace the ugly "yellow brick road" front entry way walk, expand the back patio and to add trellis-like coverings to both to provide shelter from the rain. We had Al, the same architect that did the kitchen design, work up drawings. (Click on them to see them full size).
Since we now knew the system we were able to get these plans through City Planning and the County Building Department will relatively little effort. There were a few things we had to do: Because we are in a "Extreme Fire Hazard Area" we were required to use fire-treated lumber for the structure. (Apparently the entire PV Peninsula is an extreme fire hazard area.) We choose to use a product called TimberSil.

Work Commences

We got started 2/25/2013. Took only a single day to remove the old front entry walk and back patio:

You will notice in the photographs the beginnings of some rather large holes in the ground. These will become the concrete footings for the posts that hold up the trellis. The engineer calculated that for the front posts the footings would have to be 2'x2'x2' and for the back the same 2'x2' wide but a full 3' deep. That makes them significantly larger than the new footings we installed to hold up the second floor in the kitchen remodel. We call this "over engineered".

Work then continued with the building of forms:

And the rebar:
Rebar "Cage installed in the hole where the column will go.

 

Columns set in place and footings poured:

At this point the logical next step would be to pour the slab. But we ran into issues getting the coloring agents used to make the "stamped concrete" look like slate. In the meantime our contractor made some progress getting the new beams into place:
Finally Wednesday March 20 all is ready and the concrete truck arrives early in the morning:

The machine on the right being tended by the fellow in the yellow jacket is the concrete pump used to push the stuff through a hose to the back yard where it flows out into the form under the careful guidance of the operator.

 

As you can see in the photo below it gets very busy. I'm not sure how that many workers manage to tromp around in there without any getting a concrete bath!

Then the finishing:
Unfortunately I wasn't able to hang around and photograph the stamping process, but the result looks nice:

Landscape

Because of the delay our contractor was not able to finish before his planned 2 week vacation. So work on the trellises came to a stop. However, we were able to utilize the gap and get the landscape work started. The first step is remove all the existing plants remaining in the little courtyard entry.

Next install new drain lines to carry water from the back yard to the street and hopefully eliminate the ponds behind the house.

The planting areas are leveled, and new decomposed granite walkways are laid:
Not all of the work is being done by the landscapers, on the weekends Diane and I have been slowly removing the remaining little rock planter walls that outlined where the spa used to sit. (Some of these are visible in the foreground back patio forms picture above.) Weekend of April 6-7 Katy came to visit and help. The Father-Daughter Wrecking crew tackled the remaining bits while Mom hauled rock.
With Katy home we also got the tomatoes planted out for the year. This year we gave up on the Home Depot "heavy duty" tomato cages (that fell over last year) and built much more substantial tomato structural supports out of steel grape stakes and wooden trellis sections:

Roses!

After living at 6 Silver Spring for nearly 2 years we finally have a rose garden. (or at least the beginnings of one, we have left space to add more roses next winter when they will be available bare-root.)

The courtyard is now planted as well. Yes there is lot of bare dirt, but the chosen plants are water conserving spreading types so we have left them room to grow. Also notice in the background the new trellis is nearing completion.
In the back the trellis is nearly complete as well. The heaps of debris have been hauled away, and there is a large patch of bare dirt that awaits planting.
Up in the vegetable garden the new peppers have been planted out.

 

 

In front last year's plantings have filled in nicely:


Finishing Touches

Its the beginning of May, and polycarbonate material to cover the trelles has finally arrived and been installed.

 

Also time to think about planting that big bare area, so Diane and I trekked up to Sun Valley and the Theodore Payne Foundation that specializes in California native plants. Brought back a whole care full of Salvias, Huechera, Ceanothnus and more.
Saturday May 4 we manage to get them planted (as well as run irrigation).
Tranformed: Our ugly duckling of a house is ready for the final touch - new paint. We select a painter, and while we wait for the work to begin, we plant a "small" trial patch of a variety of buffalo grass in the back yard. In hindsight, we should have waited to plant until after the painting, but then we would have missed the spring window. Working from plugs was slow going. Especially since we had to dig out roots in order to put the sprinkler lines underground.
We got a new TV antenna too. Will said "It didn't look this big in the catalog" And while Will installed the antenna, I auditioned paint colors.
The work begins. We missed taking pictures of the power washing, but it pretty much thrashed the gardens, splattering all the plants with shreds of paint.
Work began on 7/7, wrapped up in two weeks, and now, 8/4, the patio covers are reassembled. I repainted the olive wreath for the front panel. We got fresh mulch (free!) for the front courtyard.
You can see our experimental grass at left (the green polka dots). And in front of the patio, flats of succulents for hanging baskets - this afternoon's projects.
All done!